
w98威九国际泄压/持压阀9500X概述:
泄压阀:可将给水管中超过导间安全设定值的压力释放,并维特管中压力在一安全设定值以下,以防止管中高压或突压毁损管线或设备。可用于高层大楼消防测试循环系统,以防止水压过高造成系统危险。挂压间:可维持主间上游供水压力于某一设定值以上,以保障主间上游供水区之压力。鉴开启阎:装于消防喷淋泵出水口处,当泵出水口处压力上升至某一设定值以上时此间立即开启。
压力等级:PN10.PN16.PN25
通径:中50mm~中500mm
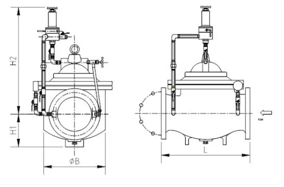
w98威九国际泄压/持压阀9500X结构图:

| 如果你对 w98威九国际泄压/持压阀9500X感兴趣,想了解更详细的产品信息,填写下表直接与厂家联系: |